Lot 14h Good Shepherd Trail, Spring Hope, NC

$490,900

Previous Next

3

Beds

Baths

2,077

Square feet

2.27

Acres

About Lot 14h Good Shepherd Trail

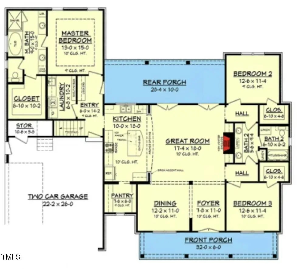
Charming 1-Story Home with Bonus Room built by CM Moore Construction. Relax on the rocking chair front porch of The Jenesis Plan, inviting you into this beautifully designed home. Double doors lead to a spacious foyer, opening up to an expansive great room and dining area with an open-concept flow. A stunning arched wall leads into the kitchen, featuring a large island and ample cabinet storage. Enjoy the convenience of a pantry/scullery off the kitchen, complete with a window for natural light. All bedrooms are located on the main level, with the master suite offering a tray ceiling, separate tub and shower, and a generous walk-in closet. The secondary bedrooms are located on the opposite side of the home, ensuring privacy. A cozy fireplace with built-ins creates the perfect ambiance in the great room. Upstairs, you'll find a versatile bonus room, ideal for a home office or entertainment space. Step outside to a large covered back porch, perfect for enjoying the .92-acre lot. The side-load garage adds to the home's curb appeal and functionality. Welcome home to The Village of Old Spring Hope. Buyer may choose lot.

Features of Lot 14h Good Shepherd Trail

MLS® # 10085574
Price $490,900
Bedrooms 3
Bathrooms 2.50
Full Baths 2
Half Baths 1
Square Footage 2,077
Acres 2.27
Year Built 2025
Type Residential
Sub-Type Single Family Residence
Style Bungalow, Craftsman, Farmhouse
Status Active

Community Information

Address Lot 14h Good Shepherd Trail
Subdivision The Village of Old Spring Hope
City Spring Hope
County Nash
State NC
Zip Code 27882

Amenities

Parking Spaces 2
# of Garages 2
Is Waterfront No
Has Pool No

Interior

Heating Forced Air
Cooling Central Air
Fireplace No
Stories One, One and One Half
Has Basement Yes
Basement Block

Exterior

Roof Shingle
Construction Other
Foundation Block

School Information

Elementary Nash - Spring Hope
Middle Nash - Nash Central
High Nash - Nash Central

Additional Information

Date Listed March 28th, 2025
Foreclosure No
Short Sale No
RE / Bank Owned No

Listing Details

OfficeFathom Realty NC

Listing Map

Request a Showing

Provide a valid email address.
When would you like to view this property?